Debrecen-Józsán szép családi ház ,hatalmas műhellyel eladó

2504 Nyomtatás Ajánlás Facebook

Eladó szépen felújított, tágas családi ház Józsa csendes, rendezett környékén – cserelehetőséggel
Ha egy felújított, nagyvonalú terekkel rendelkező családi házra vágyik, amelyben kényelmesen elfér egy többgyermekes család, vagy akár vállalkozás és otthon egyben is megvalósítható, akkor ez az ingatlan ideális választás lehet az Ön számára.
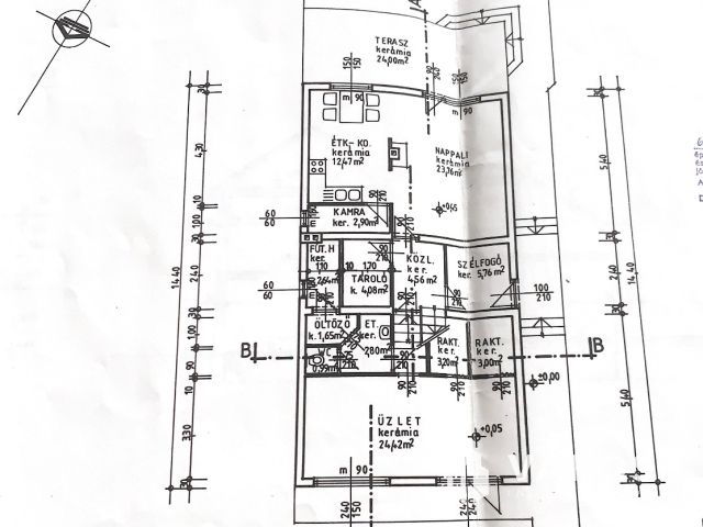
A 180 m²-es ház Józsa nyugodt, mégis jól megközelíthető részén található, 1000 m²-es, rendezett telken. A ház teljes körű felújításon esett át, így modern komfortot kínál, megőrizve a klasszikus, otthonos hangulatot.
A földszinten egy tágas nappali, étkező és konyha található, melyek harmonikusan kapcsolódnak egymáshoz, így ideális teret biztosítanak a családi együttlétekhez és vendégfogadáshoz.
Az ingatlanban összesen öt hálószoba kapott helyet, ami lehetővé teszi, hogy minden családtagnak saját, kényelmes élettere legyen.
A két különálló fürdőszoba és WC szintén a kényelmet és a praktikus mindennapokat szolgálja.
A 30 m²-es, fedett terasz kiváló helyszín a pihenésre, baráti összejövetelekre vagy családi étkezésekre, miközben kilátás nyílik a kertre.
Külön említést érdemel a 87 m²-es, szigetelt műhely, amely tökéletes választás lehet vállalkozók, kézművesek, autószerelők, barkácsolást kedvelők vagy akár otthoni iroda kialakítása számára is. Az épület méretének köszönhetően sokrétűen hasznosítható.
Az udvaron akár 10 autó parkolása is kényelmesen megoldható, így a parkolás semmilyen körülmények között nem jelent problémát.
Az eladó albérletbe is hajlandó az ingatlant kiadó, melyet a bérlő később megvásárolhat.
Főbb jellemzők:
180 m² lakótér, tágas, világos helyiségek
Szilikát falazat – masszív, jól hőszigetelő szerkezet
Nappali + 5 külön nyíló szoba
2 fürdőszoba, 3 WC
30 m²-es, fedett terasz
87 m²-es, szigetelt műhely / melléképület
1000 m²-es, parkosított, rendezett telek
Akár 10 autó számára is alkalmas udvar
felújított, azonnal költözhető állapot
Fúrott kút

Cserelehetőség:

A tulajdonos cserelehetőséget is mérlegel: szívesen cserélne földszintes, 80–90 m²-es, 3 szobás családi házra a Balatontól legfeljebb 20 km-re (Tapolcáig), vagy a Bükk–Mátra térségében.
Ez a lehetőség ideális azoknak, akik nyugodt, tágas otthonra vágynak, de rugalmasan gondolkodnak az ingatlancserében is.
Összegezve: Ez az ingatlan tökéletes választás mindazoknak, akik minőségi, gondosan karbantartott otthont keresnek kiváló adottságokkal.
A ház nagy alapterületével, jól átgondolt elrendezésével és sokoldalú melléképületével egyaránt kiszolgálja a családi élet és a vállalkozás igényeit.
Tágas,terek, igényes kivitelezés, biztonságos és nyugodt környezet , valóban élhető otthon várja új tulajdonosát.
Amennyiben hirdetesünk felkeltette érdeklődését kérem, vegye fel velünk a kapcsolatot megtekintés céljából.

Az ár IRÁNYÁR !

TRIPSÓ ILDIKÓ
+36 30 9055419
Városi Ingatlaniroda
Debrecen

Tripsó Ildikó

Tripsó Ildikó

Ingatlanértékesítő
Debrecen
+36 (30) 905 5419
Észrevétel a hirdetéssel kapcsolatban
Egy ingatlanos naplója