Földeáki szerkezetkészre felújított 2.sz. lakás

2525 Nyomtatás Ajánlás Facebook

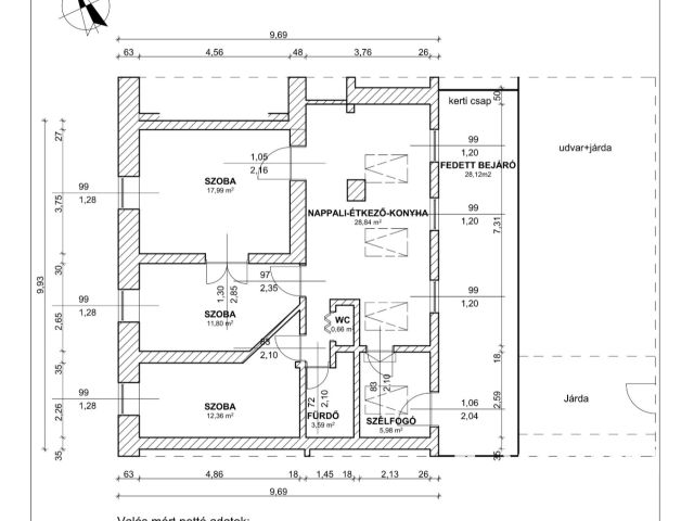
Földeák központjában kínálom eladásra ezt a lakást. A társasházban 3 lakás került kialakításra, melyek szerkezetkész állapotban várják az új tulajdonosukat. Parkosított udvar, lakásonként kertrész és autóbeálló áll rendelkezésre, valamint hőszivattyús fűtés előkészítése is megtörtént.
Ingatlan vásárlóknak és befektetőknek is ajánlom!
További kérdéseivel keressen bizalommal!
Horváth Zsolt
+36 (30) 463 1474

Horváth Zsolt
PRÉMIUM

Horváth Zsolt

Ingatlanértékesítő
Hódmezővásárhely
+36 (30) 463 1474
Észrevétel a hirdetéssel kapcsolatban
Egy ingatlanos naplója