Kétgenerációs Modern Családi Otthon Soroksáron

3643 Nyomtatás Ajánlás Facebook

Eladó Ikerház Budapest 23. kerületében – Modern Életforma Kertvárosi Környezetben. Nagycsaládosoknak vagy több generáció számára is kényelmes életteret biztosít.

Főbb jellemzők:
- Telek méret: 650m2
- Saját kert: 160m2
- Hasznos lakótér: 168 m2
- Építés éve: 2024
- A ház prémium minőségű anyagok felhasználásával készült. Még nem lakták így Ön lehet az első lakója.
- Falazat: Ytong (30cm) + 10cm Drywit hőszigetelés
- Energetikai besorolás: BB
- 5 légkamrás, 3 rétegű üvegezésű Fenstherm nyílászárók
- 5 ponton záródó biztonsági bejárati ajtó
- Fűtésrendszer: Hőszivattyú (Loria Duo 6000, 10 kW levegő–víz) - padlófűtés
- Minden helyiségben külön termosztáttal szabályozható a hőmérséklet
- Hűtés előkészítés megtörtént (fan-coil rendszerhez)
- Praktikus elosztás, élhető terek.
- Terasz
- Erkélyek
- Riasztó rendszer
- Motoros kapu
- Azonnal költözhető

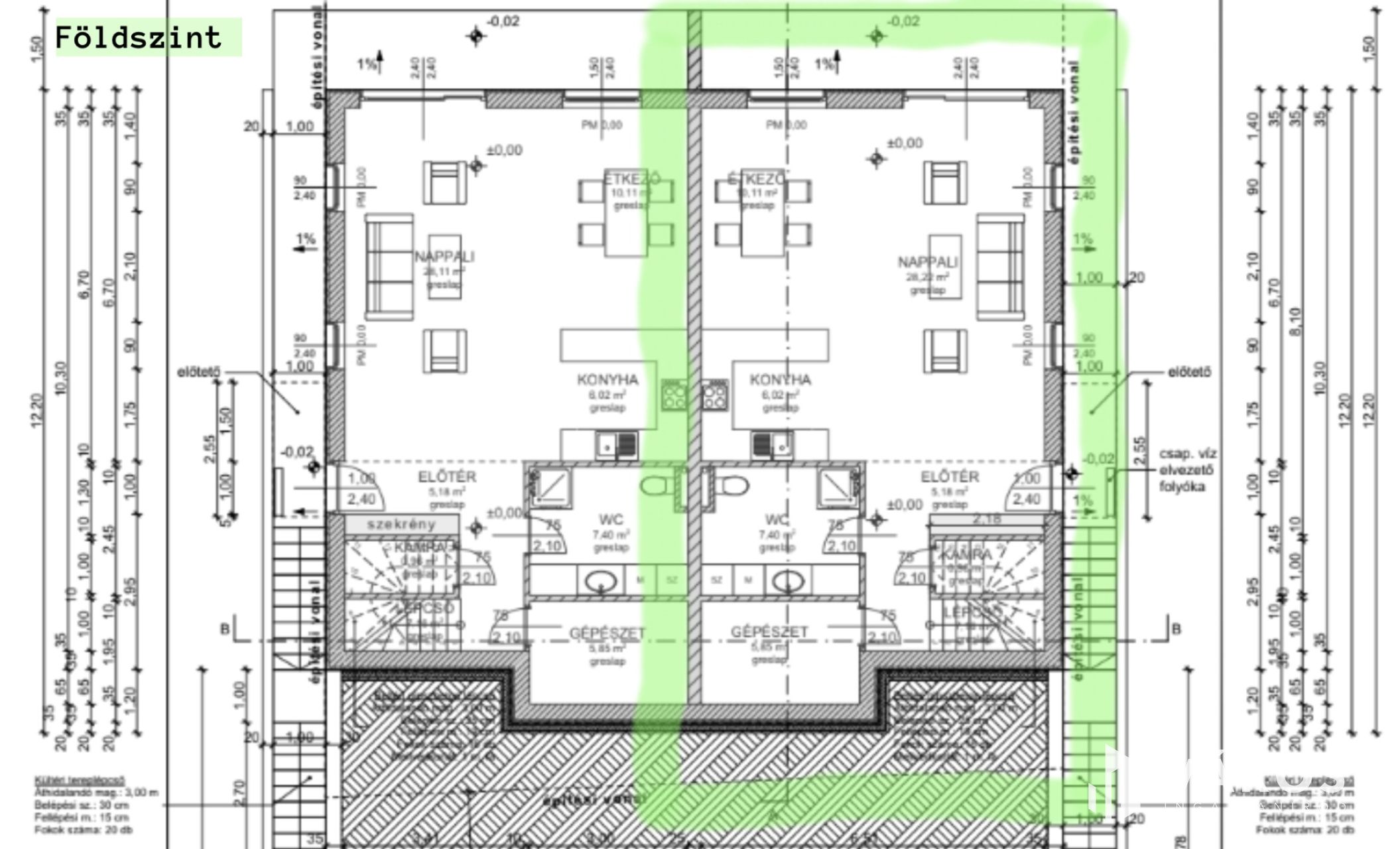
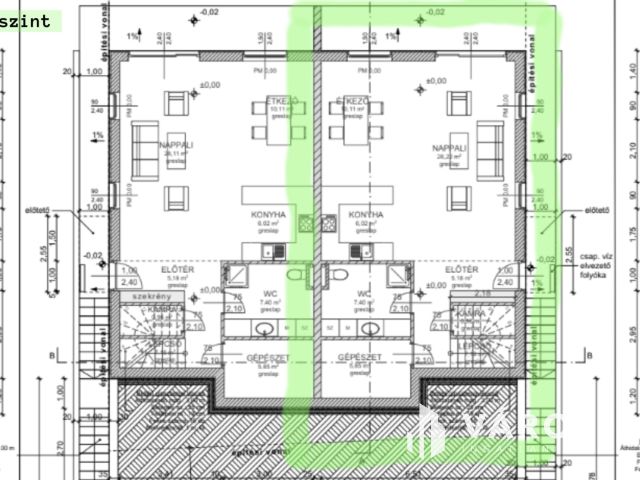
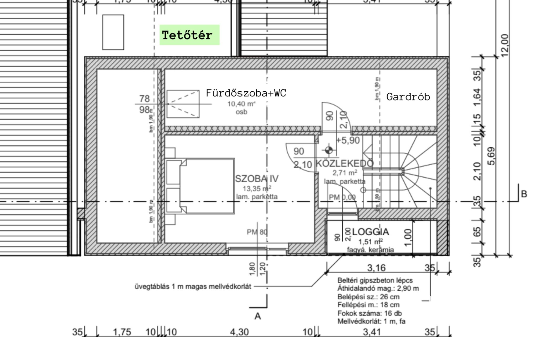
Elrendezés:
- Földszint: Amerikai-konyhás Nappali, fürdő+wc, gépészeti helyiség, kamra, terasz
- Emelet: 4db hálószoba, Fürdő+wc, erkély
- Tetőtér: Szoba, fürdőszoba+wc, gardrób, erkély (Önnáló lakrészként is használható!)

Parkolás:
- 2 autónak zárt udvari beállón
- Utcán ingyenes

Elhelyezkedés:
- Soroksár-Orbánhegy, nyugodt kertvárosi környezetben

Közelben található:
- Iskola, óvoda, bölcsőde, Lidl, Aldi, gyógyszertár, sportpályák, játszótér, boltok-üzletek

Közlekedés:
- HÉV -buszmegálló a közelben
- Boráros tér 15 perc alatt elérhető
- M0 körgyűrű, M5 autópálya, 5-ös és 51-es utak 8 perc alatt elérhetőek

Ha kérdése merülne fel vagy szeretné megtekinteni az ingatlant, forduljon hozzám bizalommal!

Pálvölgyi Miklós

Pálvölgyi Miklós

Ingatlanértékesítő
Szigethalom
+36 (70) 426 3163
Észrevétel a hirdetéssel kapcsolatban
Egy ingatlanos naplója