Modern ház családosoknak!

5591 Nyomtatás Ajánlás Facebook

.

Kedves Érdeklődő!

Eladó egy gyönyörű ikerház tágasabb, utca felőli része, Göd város csendes utcájában. Az ingatlan 116 m²-es lakótérrel és egy 202 m²-es telekmérettel rendelkezik. Az épületben 3 szoba, 1 nappali, 2 fürdőszoba, külön fürdő és wc található. A belső terek prémium anyagok felhasználásával lettek kialakítva, így egy modern és elegáns otthon várja az új lakókat. Az új nyílászárók gondoskodnak a jó hő- és hangszigetelésről, így az alacsony fenntartási költségek mellett is kellemes klímát biztosítanak.

Az ikerház frekventált helyen található, közel a belvároshoz, mégis egy csendes utcában. A környék zöld övezetben található, így igazi oázis nyújt nyugalmat és nyugodt környezetet az itt élőknek. A padlófűtés és amerikai konyha gondoskodik a komfortos életérzetről, míg a külső hőszigetelés és az új villamoshálózat gondoskodik az energiatakarékosságról. A falfűtés pedig külön élményt biztosít a hideg téli estéken.

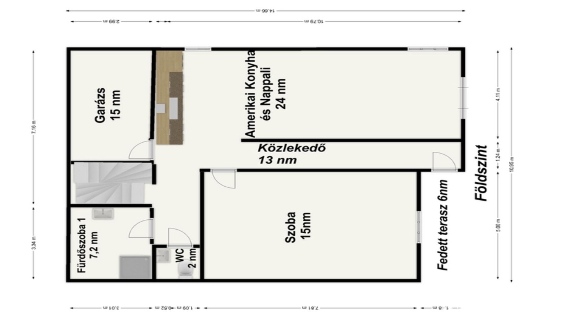
A földszinten tágas nappali, amerika konyhával terasz ablakokkal várja a családot ami nagyon világos egész nap, a jelenlegi konyhabútor, kérésre maradhat. A nappali szomszédságában található a garázs, egy hálószoba, külön álló wc és egy fürdőszoba zuhanyzó kabinnal.

Az emeleten 2 szoba, és egy sarokkádas fűrdőszoba található, gyönyörű burkolatokkal.

Az udvarban lehetőség van gépjármű beálló kialakítására, de garázs is található a földszinten, az új tulajdonos választja ki a garázs ajtót.. Ha szeretne egy modern és energiatakarékos otthonban élni, amely csendes, de mégis közel a város központjához, ne habozzon, hanem keressen minket bizalommal!

Göd, Budapesthez közel, M2 autó út 5 percre, ahol 15 perc Budapest, illetve É-ra Vác a Duna-kanyar kapuja szintén 18 perc autóval.
Iskola. óvoda 1,2 km az ingatlantól.

Az ingatlan Kft-től eladó, ahonnan vissza igényelhet az 5% ÁFA.



Várjuk jelentkezését!

Dear Interested Party,

A beautiful half of a duplex house is for sale in a quiet street in Göd, with a spacious street-facing section. The property has 116 m² of living space and a plot size of 202 m². The building features 3 rooms, 1 living room, 2 bathrooms, a separate bathroom, and a WC. The interior spaces have been designed using premium materials, offering a modern and elegant home for the new residents. The new windows ensure good thermal and sound insulation, providing a pleasant climate with low maintenance costs.

The duplex house is located in a sought-after area, close to the city center, yet on a quiet street. The neighborhood is in a green zone, providing an oasis of peace and a tranquil environment for its residents. Underfloor heating and an American-style kitchen ensure a comfortable living experience, while the external thermal insulation and the new electrical system guarantee energy efficiency. The wall heating system offers a unique experience on cold winter evenings.

On the ground floor, a spacious living room with an American kitchen and terrace windows awaits the family, which is very bright throughout the day. The current kitchen furniture can remain upon request. Adjacent to the living room is the garage, a bedroom, a separate WC, and a bathroom with a shower cabin.

Upstairs, there are 2 rooms and a bathroom with a corner bathtub, featuring beautiful tiles.

The yard provides the possibility to create a parking space for a vehicle, but there is also a garage on the ground floor, with the new owner able to choose the garage door. If you would like to live in a modern and energy-efficient home that is quiet yet close to the city center, do not hesitate to contact us with confidence!

Göd is close to Budapest, just 5 minutes from the M2 motorway, with a 15-minute drive to Budapest, and 18 minutes to Vác, the gateway to the Danube Bend. Schools and kindergartens are located 1.2 km from the property.

The property is for sale by a limited company, from which you can reclaim the 5% VAT.

We look forward to your application!

Vasi Attila
Real Estate Agent
Kosd
+36 (20) 252 7176





Let me know if you need any further adjustments!

Vasi Attila

Vasi Attila

1 éve a Városi Ingatlaniroda tagja
Ingatlanértékesítő
Kosd
+36 (20) 252 7176
Észrevétel a hirdetéssel kapcsolatban
Egy ingatlanos naplója