NAPPALI PLUSZ 4 VAGY 5 SZOBÁS CSALÁDI HÁZ SUBASÁN 03

1790 Nyomtatás Ajánlás Facebook

Szeged Subasa városrészben Eladó egy most induló, tégla építésű, 140 nm-es élettérrel rendelkező, nappali plusz négy - öt szobás TÉGLA építésű ház, amelyhez igény szerint terasz, vagy medence is járhat (ez külön megállapodás lehet az eladóval), mindenezek mellett egy 805 nm - es telek is jár hozzá.
A látványtervek folyamatban vannak.
A feltűntetett ár Szerkezetkész ár, az építtető vállalja a kulcsrakész befejezést is.
Kulcsrakész ára 109.900.000 Ft
Várható kulcsrakész befejezés, kezdéstől számított 7-8 hónap.
Az ingatlanra CSOK plusz, otthon start, és más hiteltámogatás is igénybe vehető.
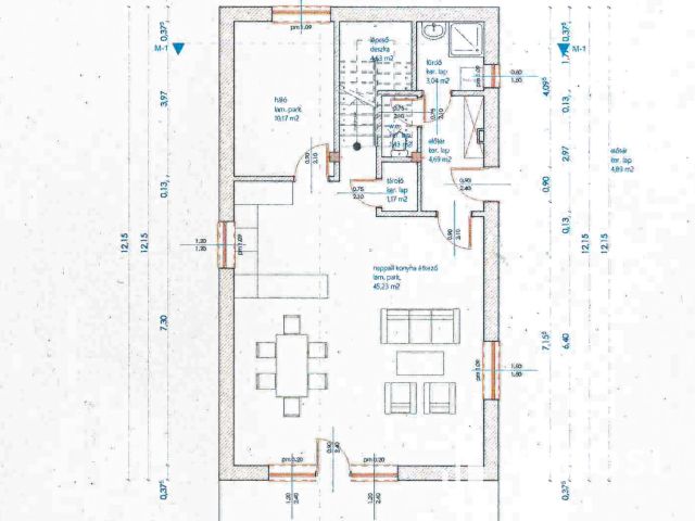
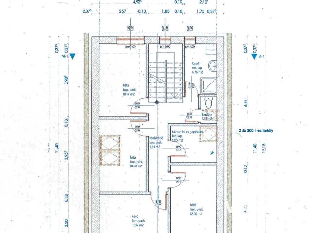
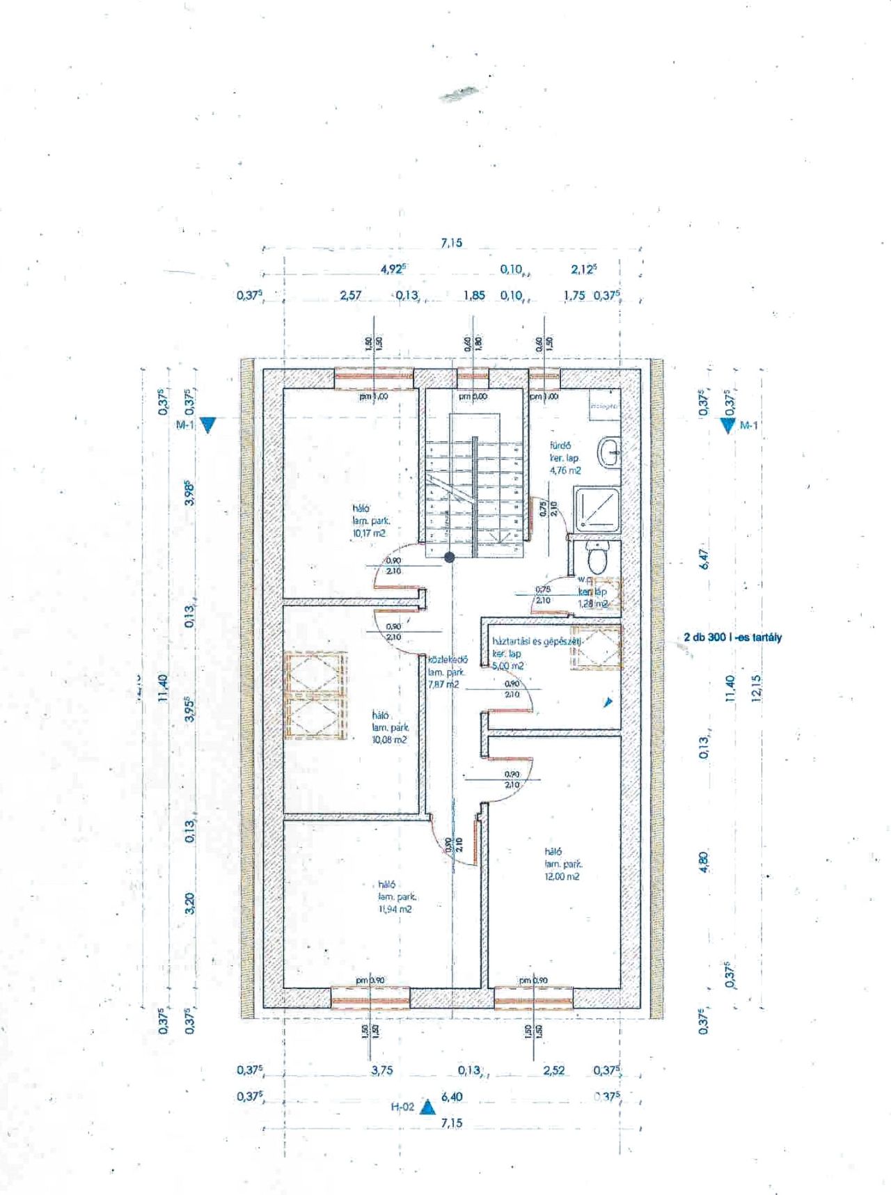
A ház 1 db óriási amerikai konyhás nappalival, 5 db hálószobával, 2 db fürdőszobával, közlekedővel, terasszal rendelkezik. Az ingatlan elhelyezkedésre, kialakítása miatt, maximálisan kiemeli ezt az ingatlant az átlagos lakások sorából és egyedülálló választássá teszi azt. További előny. hogy ház hőszivattyús helyiségenkénti Fan coilos hűtő - Fűtő rendszerrel lesz felszerelve.
Fontos tény, hogy teljesen hétköznapi használat mellett is a rezsicsökkentés értékhatárai alatti a fogyasztás, így a rezsiköltség rendkívül alacsony.
A lakás délkeleti fekvésű, napfényes ingatlan.
A környék infrastruktúrája tökéletes, tömegközlekedés, 1 - 3 percnyire az ingatlantól.

Helyiségei:
- amerikai konyhás nappali
- 4-5 szoba
- dupla fürdő
- wc
- közlekedő, előtér
- terasz

Az ingatlan megtekintése rugalmas.
Teljes totál műszaki tartalomért, illetve megtekintésért hívjon bármikor bizalommal.


Várom megtisztelő hívását:
KÓKAI FERENC Ving
+36 70 422 9777
Prémium ingatlanértékesítő
Szeged

Kókai Ferenc
PRÉMIUM

Kókai Ferenc

6 éve a Városi Ingatlaniroda tagja
Ingatlanértékesítő
Szeged
+36 (70) 422 9777
Észrevétel a hirdetéssel kapcsolatban
Egy ingatlanos naplója