Panorámás ikerház fél Tinnyén a királyvölgy lakoparkban

577 Nyomtatás Ajánlás Facebook

Panorámás ikerház fél eladó Tinnyén – Királyvölgy lakópark, Budapesttől 25 km-re

Tinnyén, a folyamatosan fejlődő és egyre népszerűbb Királyvölgy lakóparkban kínálunk megvételre egy megkezdett építésű ikerház egyik felét, gyönyörű panorámával a környező dombokra és a Pilis vonulataira. A lakópark az utóbbi években az egyik legkeresettebb kiköltözési célpont lett a Budapest környéki települések között, hiszen csendes, természetközeli környezetet kínál, miközben a főváros autóval könnyen elérhető.
A település népszerűségét az is növeli, hogy Budapest közelsége ellenére az ingatlanárak még mindig kedvezőbbek az agglomeráció számos részéhez képest, így itt egy új építésű, panorámás otthon már 97 millió forintos áron elérhető.

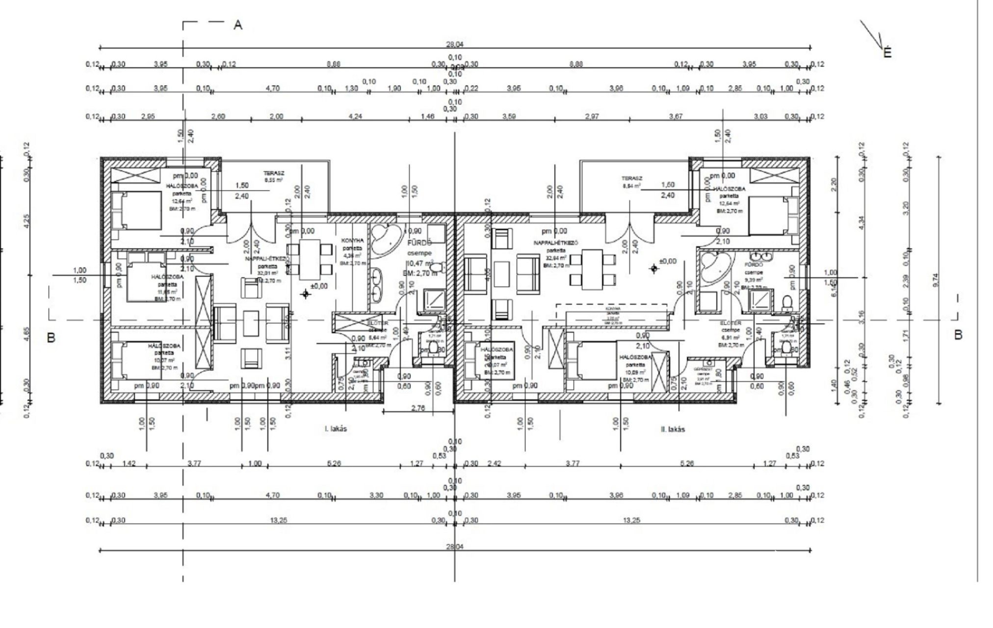
A 1500 nm-es, domboldali telken egy földszintes, kétlakásos ikerház épül.A másik oldal még nem került megépítésre, jelenleg telekként érhető el. Mindkét lakás külön 750 nm-es saját telekrésszel rendelkezik, így a lakók valódi kertkapcsolatos, tágas életteret élvezhetnek.

Az eladó lakás 112 nm bruttó alapterületű, nettó lakótere közel 90 nm, amely egy szinten helyezkedik el. A belső elrendezés praktikus és családbarát: egy tágas, közel 32 nm-es nappali–étkező, külön konyha, három hálószoba, fürdőszoba, külön WC, előtér és gépház kerül kialakításra. A nappali nagy üvegfelületei világos, élhető teret biztosítanak, és közvetlen kapcsolatot teremtenek a kerttel és a panorámás környezettel.

Az építkezést egy tapasztalt, több referenciával rendelkező kivitelező végzi, aki az építkezések során minőségi anyagokat alkalmaz. Az épület 30 cm-es Porotherm téglából épül, 12 cm homlokzati hőszigeteléssel. A válaszfalak 10 cm-es téglából készülnek, a födém fagerendás szerkezetű, a tető nyeregtető kerámia cserépfedéssel, alatta 20 cm kőzetgyapot szigeteléssel. A két lakás között külön főfal szerkezet épül, amely megfelelő hangszigetelést biztosít.

A fűtési rendszer a tervek szerint modern hőszivattyús megoldással, padlófűtéssel készül. A közművek külön kerülnek kiépítésre: a víz és a villany külön mérőórával rendelkezik, a csatorna az utcáról beköthető, gáz pedig igény esetén megoldható.

A telek egyik legnagyobb értéke a panorámás elhelyezkedés, amelyről gyönyörű kilátás nyílik a környező dombokra és a Pilis hegyeire. A környéket a csend, nyugalom és természetközeli életforma jellemzi, így ideális választás azok számára, akik Budapest közelében szeretnének élni, mégis nyugodt, zöld környezetben.

Az ingatlan akár kedvezményes, 3%-os hitellel is megvásárolható. A kivitelezés várható befejezése 2026 év vége körül várható, azonban az építkezés ütemezése megegyezés szerint alakítható.

Ha egy panorámás, új építésű otthont keres Budapest közelében, természetközeli környezetben, ez az ingatlan kiváló lehetőséget kínál.
Várom megtisztelő érdeklődő hívását.

Slájer Tamás
PRÉMIUM

Slájer Tamás

9 éve a Városi Ingatlaniroda tagja
Ingatlanértékesítő
Tinnye
+36 (20) 363 5186
Észrevétel a hirdetéssel kapcsolatban
Egy ingatlanos naplója