Panorámás, új építésű ház Bocföldén

1568 Nyomtatás Ajánlás Facebook

Zalaegerszegtől pár percre, csendes kis településen, Bocföldén, új építésű családi ház várja tulajdonosát.
Az ingatlan építése még folyamatban van, így akár igény szerint is alakítható, ha időben megállapodik a kivitelezővel.
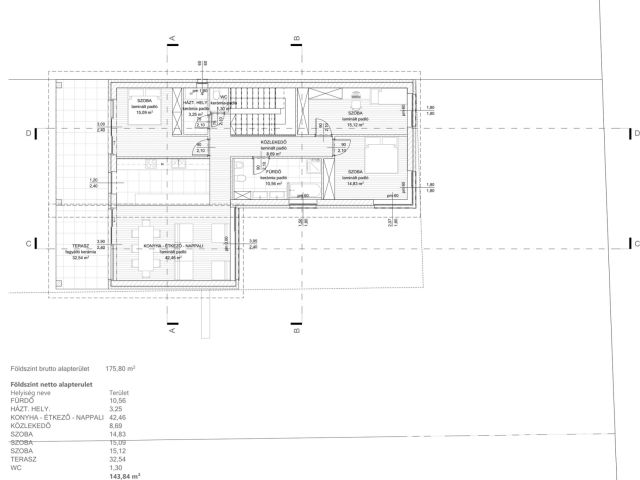
A ház egy 2275m2-es telken kerül megépítésre, beton alappal, 30-as Porotherm téglával, beton födémmel, antracit tetőcseréppel. Az épület 2 szinttel rendelkezik.
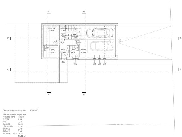
Alsó szinten kialakításra került, egy 38 m²-es dupla garázs, előtér, fürdő, két tároló, valamint a hőszivattyús fűtési és meleg víz ellátást biztosító gépészeti helyiség.
Felső szint: amerikai konyhás étkezős nappali, három hálószoba, egy fürdő, egy háztartási helyiség, valamint egy külön mellékhelység. A nappaliból egy 32 m²-es teraszra léphetünk ki.
(Mindezen helységek még variálhatók)
A ház melegét egy modern hőszívatyus rendszer, padlófűtéssel fogja szolgáltatni.
Az épület szigeteléséről 20cm homlokzati szigetelés és a 3 rétegű műanyag profilszerkezetű nyílászárok fognak gondoskodni.
Ha Ön szeretne egy jó elosztású modern belső térrel rendelkező, új családi házat közvetlen Zalaegerszeg szomszédságában, panorámás kilátással, csendes utcában, akkor ez az ingatlan kiváló választás lehet.

Hohl József
PRÉMIUM

Hohl József

10 éve a Városi Ingatlaniroda tagja
Régióigazgató
Nagykanizsa
+36 (30) 608 6857
Észrevétel a hirdetéssel kapcsolatban
Egy ingatlanos naplója