Tökéletes otthon gyönyörű környezetben

4756 Nyomtatás Ajánlás Facebook

Nagykanizsa kedvelt városrészében ,Szabadhegyen várja új lakóit egy minden igényt kielégítő, családi otthon!
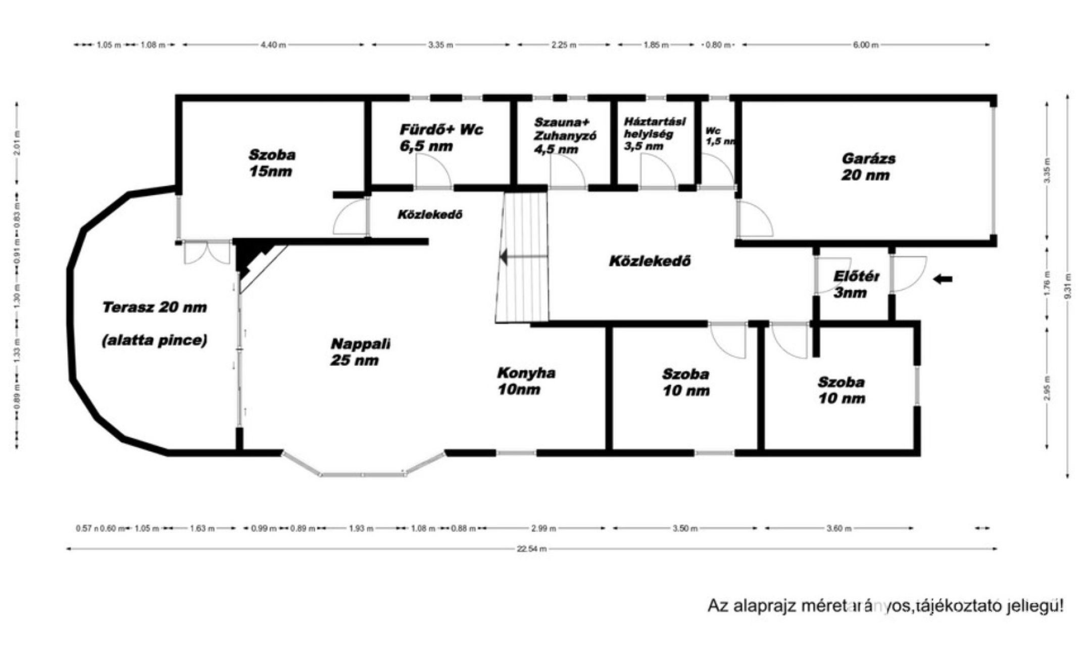
A 140 nm-es lakóteret:
a nappali,amerika konyha-étkező -közlekedő,
3 hálószoba,
1 fürdőszoba+Wc,
1 szauna+zuhanyzó,
1 különálló wc
háztartási helyiség
+ 20 nm-es ,lakásból nyíló garázs alkotja!
Belépéskor egy kényelmes előtéren keresztül érkezünk a tágas lakótérbe. A két kisebb méretű háló keleti és déli fekvésűek ,tökéletesen megfelenek gyermek vagy dolgozó szobának.
Pár lépcsőfokkal lejjebb elénk tárula a nappali,konyha étkező harmonikus együttese.
A minden oldalról beáradó fény biztosítja a helyiségek barátságos hangulatát. Ezt még a téli hónapokban fokozza a sarokban elhelyezett kandalló látványa.
A legnagyobb hálószobából is közvetlenül megközelíthető a terasz és a nappalihoz hasonlóan a kertre néző,nyugati fekvésű,lenyűgöző kilátással a kertre!
A gyönyörű,elegáns konyhabútort a tulajdonosok 2 éve álmodták meg! A prémium minőségű ,beépített bútor az apró ötleteket,rejtett megoldásokat,praktikus helykihasználást egyesíti az örök életre szóló gránit munkalap,a beépített borhűtő,igényes és ízléses burkolatok látványával!
A kényelmes méretű fürdőszoba sarokkáddal,dupla kézmosóval,-wc-vel és bidével teszi komfortossá a mindennapokat!
Az ízléses burkolatok mediterrán hangulatot idéznek. Itt biztosan kellemesen indul a reggel!
A kényelem érzését tovább fokozza az infraszauna,ahol egy fáradt nap végén kényeztető ellazulás következhet!

A ház melegéről a közös terekben padlófűtés gondoskodik,a szobákban falfűtés van. A kandalló és az inverteres klíma pedig még tovább segíthet a komfortos hőmérséklet kialakításában.
A teraszajtók elektromos redőnnyel vannak felszerelve.
A lakók biztonságáról 2 körös riasztórendszer és kamerás beléptető rendszer gondoskodik.
Az ingatlanban 3x36 A teljesítényű villamoshálózat van,de a tulajdonosok környezettudatos gondolkodásának köszönhetően 2018-ban 4,4 kw,16 cellából álló napelemrendszer lett telepítve. Ezzel a ház teljes áram felhasználása biztosítva van ,segítve a hatékony és gazdaságos fenntartást.
A nappaliból tolóajtón keresztül lépünk ki a 20 nm, egyedi,félkör alakú teraszra.
A kilátás bármelyik évszakban tökéletes. A parkosított udvar igazi oázis, ahol a változatos ,sokszínű növényzet mellett két kerti tó látványa fogad minket. A kert és a tó gondozásához 7 zónás automata öntözőrendszer és pozitív fúrt kút áll rendelkezésre.
A kerti vílágítás,a kertben elérhető áramkiállások kényelmessé teszik az udvaron töltött időt!
Különleges helyszíne lehet baráti beszélgetéseknek,családi találkozásoknak!
Az elektromos garázskapuval ellátott garázson kívül egy fedett beálló is az autók rendelkezésére áll.

Az ingatlan ára a TELJES BERENDEZÉSSEL értendő!

Ez a ház nem csak otthon, hanem életstílus!

Ne hagyja ki ezt a páratlan lehetőséget, hogy egy ilyen különleges ingatlan tulajdonosa lehessen!
Várom hívását!

Hosszúné Jakab Judit
PRÉMIUM

Hosszúné Jakab Judit

5 éve a Városi Ingatlaniroda tagja
Ingatlanértékesítő
Nagykanizsa
+36 (30) 586 7920
Észrevétel a hirdetéssel kapcsolatban
Egy ingatlanos naplója