ÚJ építésű családi ház Újszeged kiváló részén 2.!

770 Nyomtatás Ajánlás Facebook

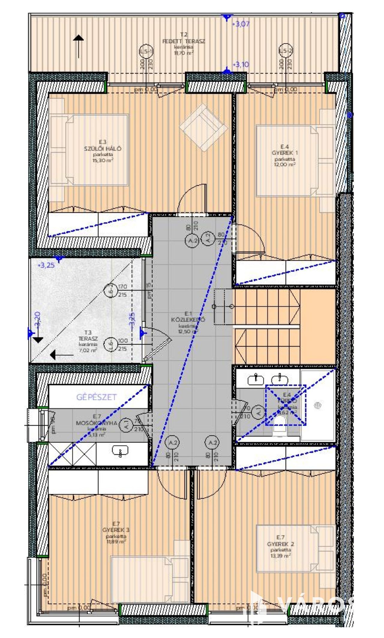
Újszeged kiváló részén eladó, jó elosztású, nappali + 4 szobás kétszintes, 195 négyzetméteres (nettó 160 m2) iker ház, dupla garázzsal, 384 négyzetméteres telekkel, szerrkezetkész állapotban.
Az ingatlan közelében Nova bevásárlóközpont, Gellért szabadidőközpont, valamint a Holt- Maros sétány található.
A ház főbb jellemzői:
- lakótér: 160 m2
- Földszint: dupla garázs: 33,06 m2
- fedett terasz: 11,07 + 8,06 m2
- amerikai konyhás nappali 36 m2
- előszoba + előtér + WC.
- Emelet:
- 4 hálószoba
- Fürdőszoba
- közlekedő
- 2 db terasz
- háztartási és gépészeti helyiség

Műszaki tartalom a teljesség igénye nélkül:

-Lemez alap mikro cölöpökkel
-Okos tégla 30 cm tartó falak
-20 cm homlokzati hőszigetelés
- Monolit vasbeton födém
- Dupla soros gipszkarton válaszfalak
- Alumínium nyílászárók és árnyékolók
- Padló fűtés, Mennyezet hűtés levegős hőszivattyúval napelemmel
- Elektromos garázskapu

A kulcsrakész ár tartalmazza a térburkolását és a kerítés építést.

Fizetési ütemezés:
Szerződéskötéskor a vásárló nevére kerül a telek tulajdoni hányad 37.500.000 ,-Ft / lakóegység
Szerződéskötéskor 20% vételár rész.

Minden ezt követő teljesítés kiegyenlítése a kötbér köteles pénzügyi és műszaki ütemterv szerint történik.

Amennyiben felkeltette érdeklődését az ingatlan, hívjon bizalommal a 06302490482 tel. számon, akár hétvégén is.
dr. Vass Zoltán

Dr. Vass Zoltán
PRÉMIUM

Dr. Vass Zoltán

10 éve a Városi Ingatlaniroda tagja
Ingatlanértékesítő
Szeged
+36 (30) 249 0482
Észrevétel a hirdetéssel kapcsolatban
Egy ingatlanos naplója