Üzemre, telephelyre vagy raktárra van szüksége? Megtalálta!

4013 Nyomtatás Ajánlás Facebook

Eladó Ipari Létesítmény Mátraderecske Határában – Kiváló Befektetési Lehetőség!

Kiváló lehetőség ipari vállalkozások, raktározás vagy logisztikai tevékenység számára! Eladásra kínálunk egy 650 m²-es ipari létesítményt, amely 2223 m²-es telken fekszik Mátraderecske határában, egy panorámás, csendes környezetben. Az ingatlan egy kiváló elhelyezkedésű területen található, ideális azoknak a vállalkozóknak, akik saját igényeik szerint szeretnék kialakítani a munkakörnyezetüket.

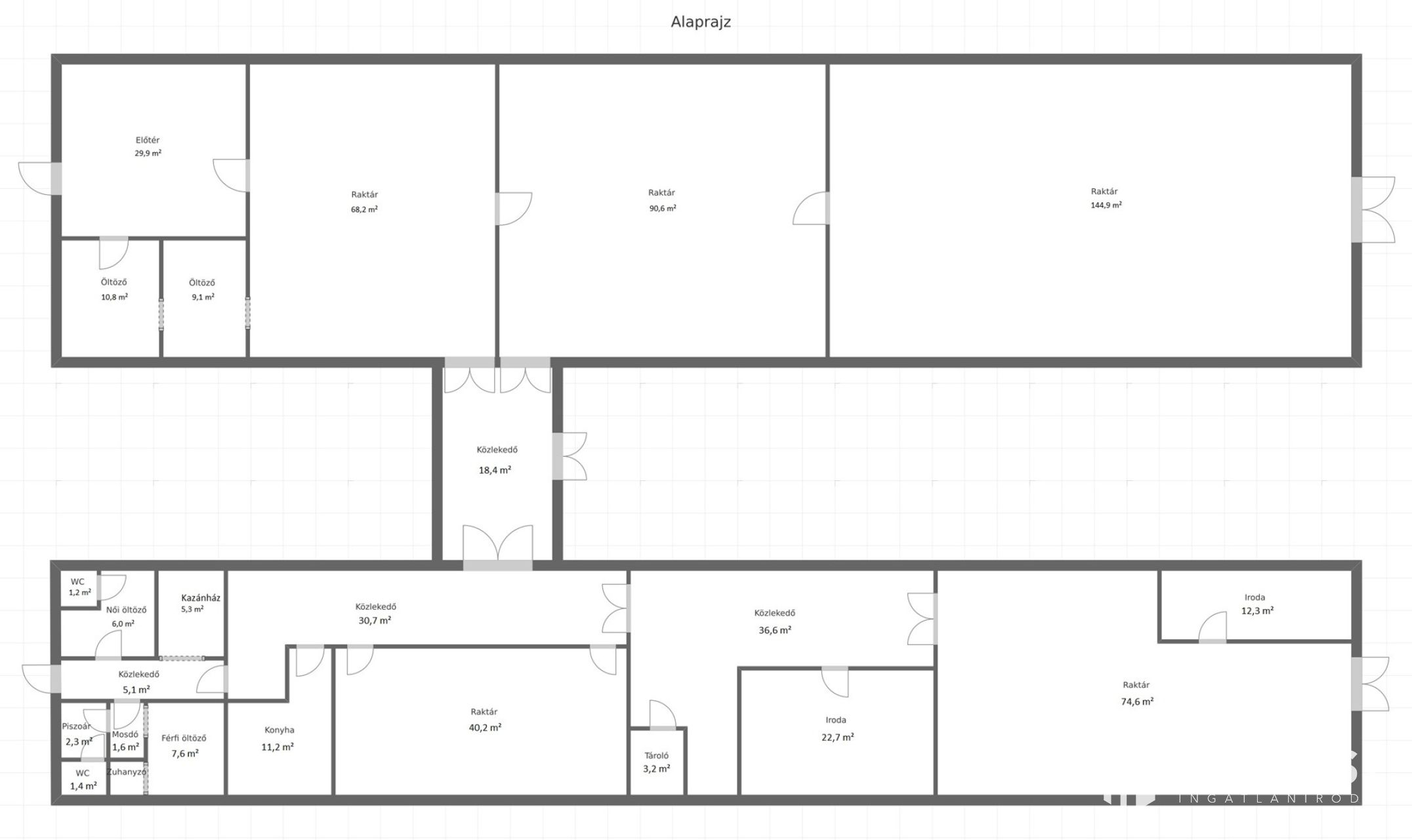
A létesítmény két nagyobb épületből áll, melyek összekapcsoltak, így könnyed átjárást biztosítanak a különböző funkciók között. Az épületekben jelenleg irodák, öltözők és raktárhelyiségek találhatóak. Bár az ingatlan felújításra szorul, ez lehetőséget ad az új tulajdonos számára, hogy saját ízlése és vállalkozása igényei szerint alakítsa ki az épületek belső terét és funkcionális elrendezését. A felújítással egy teljesen új környezetet teremthet, ami teljes mértékben megfelel a modern ipari elvárásoknak.

A telek további előnyei közé tartozik egy fából készült teherautó-garázs, amely akár négy teherautó parkoltatására is alkalmas. A területen található egy 60 tonnás mérleg, amely hasznos lehet a nehezebb termékek és anyagok mérésére. Az ingatlanhoz háromfázisú áram is tartozik, amely biztosítja a szükséges energiaellátást az ipari tevékenységekhez.

Főbb jellemzők:
- Összes épület területe: 650 m²
- Telek területe: 2223 m²
- Két összekapcsolt épület, amelyek irodákat, öltözőket és raktárhelyiségeket tartalmaznak
- Felújításra szorul, de lehetőséget ad arra, hogy az új tulajdonos saját ízlése és vállalkozása igényei szerint alakítsa
- Fából készült garázs négy teherautó számára
- 60 tonnás mérleg az ipari célú használatra
- Háromfázisú áram az ipari tevékenységhez
- Panorámás elhelyezkedés Mátraderecske határában

Ez az ipari ingatlan remek választás lehet mindazok számára, akik egy jól megközelíthető helyen szeretnének egy olyan ipari létesítményt, amelyet saját igényeik szerint alakíthatnak ki. A panorámás környezet és a helyi infrastruktúra további előnyöket kínál.

További információkért és megtekintésért keressen bátran!

Fekete Mátyás

Fekete Mátyás

1 éve a Városi Ingatlaniroda tagja
Ingatlanértékesítő
Parád
+36 (30) 474 0685
Észrevétel a hirdetéssel kapcsolatban
Egy ingatlanos naplója