Fogadó alternatív fűtéssel a gyógyfürdő mellett

19157 Nyomtatás Ajánlás Facebook

Fogadó alternatív fűtéssel a gyógyfürdő mellett!

Eladó Füzesgyarmaton, a Kastélypark Fürdő szomszédságában egy költséghatékony (alternatív) fűtéssel rendelkező vendéglátó- és szálláshely.
Közvetlenül a Fürdő bejáratánál, a fürdő területén elhelyezkedő épület.
Kellemes parkos környezetben, Füzesgyarmat üdülőövezetének központjában található.

Füzesgyarmat egy kisváros Békés megyében, a gyógyfürdője rendkívüli (reumatikus és nőgyógyászati panaszokra elsősorban). A Fürdőnek van téliesített része, illetve nyáron kiváló strandfürdőként is működik.
A fogadóhoz közel szépen karbantartott futballpálya is található.
Gyermekek táboroztatására, illetve közelben dolgozók elszállásolására is kiválóan alkalmas az üdülővendégek kiszolgálása mellett.
A közelben számos kirándulási lehetőség van, mint például a Vésztő-Mágor Történelmi Emlékhely, a dévaványai Túzokrezervátum, vadászat,... stb.

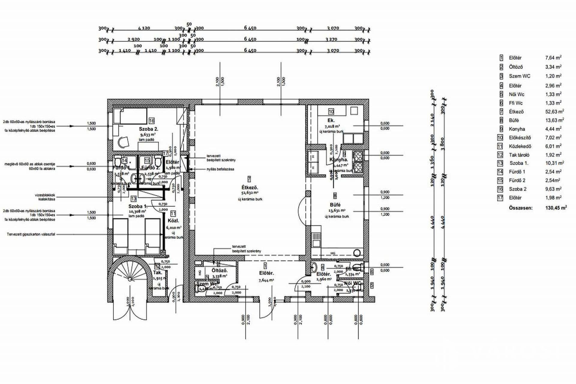
Főbb jellemzők:

- 169 m2 telken
- 409 m2 hasznos alapterület összesen
- homlokzati hőszigetelés (10 cm)
- rendkívül gazdaságos, alternatív fűtés
- 11 szoba, kb 20-24 férőhely
- 3 szinten 7 lakóegység 7 fürdőszobával
- étterem és nagyüzemi konyha
- kb. 40-45 férőhelyes étterem
- a pultból átadó ablakon keresztül kiszolgálás lehetséges a strand területére is
- szállóvendégeknek szabadtéri közösségi helyiség
- 5 db SPLIT klíma, alternatív szekunder fűtéshez 1 db 500 l-es HMV tartály
- helyi motívumokkal díszített sárréti tornácos terasz minikonyhával
- berendezés, ipari mosogatógép és egyéb eszközök megegyezés szerint
- 2020-ban felújított, folyamatosan karbantartott

1965-ben egy fúrás alkalmával 1198 méter mélyen 62 fokos termálvizet tártak fel Füzesgyarmaton. A magas nátrium-hidrogén-karbonát tartalmú víz bromidot, jodidot és bizonyos mennyiségben metabórsavat is tartalmaz. 2003-ban megkapta a gyógyvízminősítést a "Sárrét Gyöngye" elnevezésű termálvíz. A helyi gyógyvíz kiválóan alkalmas reumatikus, köszvényes bántalmak, idegzsába, isiász, törések, idült nőgyógyászati gyulladások kezelésére, gyógyítására.

https://drive.google.com/file/d/1niesVB_xJ6uLlM8p1Spjs21_XMlKccMb/view?usp=share_link

Ha felkeltette érdeklődését, kérem, hívjon, akár hétvégén is:
+36302380673

Homonnai Mónika
PRÉMIUM

Homonnai Mónika

5 éve a Városi Ingatlaniroda tagja
Ingatlanértékesítő
Békéscsaba
+36 (30) 238 0673
Észrevétel a hirdetéssel kapcsolatban
Egy ingatlanos naplója