Lehetőségekkel teli ipari ingatlan eladó

3821 Nyomtatás Ajánlás Facebook

Lehetőségekkel teli ipari ingatlan eladó

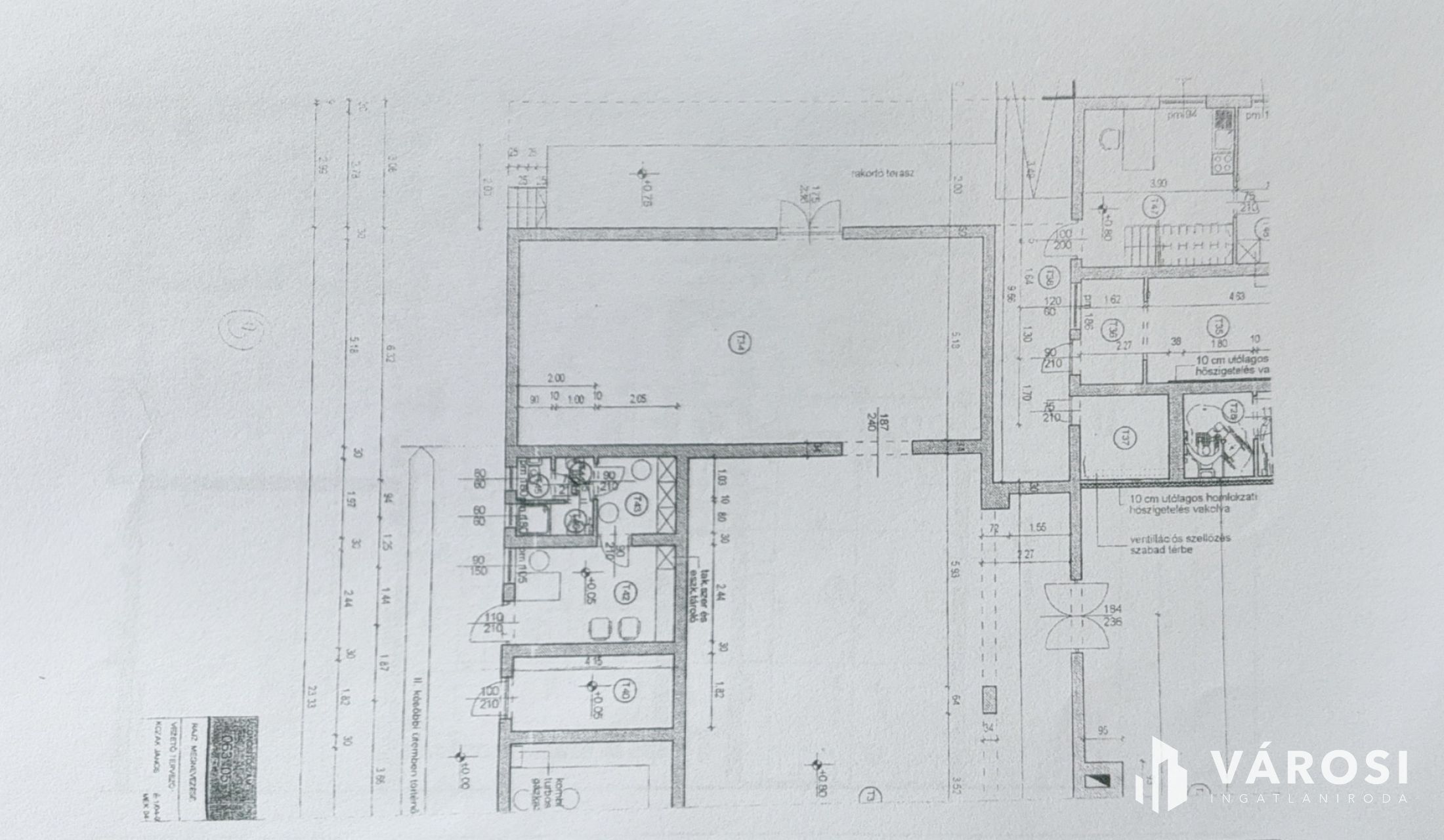
A 4575 m2-es ipari terület Békés megye egyik legkedveltebb városában, Szarvason található, fő út mellett. Két építmény helyezkedik el rajta, egy 974 m2-es főépület és egy kicsi 24 m2-es. Kialakítása és funkciója szerint jelenlegi formájában vendéglátó egységként, irodaként, raktárként, autószerelő műhelyként és egy részét lakásként használták-használják. A több bejárattal rendelkező épületegyüttes teljesen körbejárható autóval is és mögött még egy szabad nagy udvarrész is rendelkezésre áll. 2007-ben a teljes felújítás során megtörtént a nyílászárók cseréje, fűtés korszerűsítés, burkolatok cseréje, vizes blokkok kialakítása, tetőszigetelés, elektromos vezetékek, (kapcsolók) felújítása, vizesblokkok csempézése. A fűtése kombi gázkazánnal működik radiátoros hőleadással.
Az épületegyüttes jó műszaki állapotú, egyszerre több mindennek adhat, és ad is helyet, mely alkalmas lehet egymástól független vállalkozások működésére is. A jó szerkezeti állapotú ingatlan jól használható lenne a jövőben akár irodaháznak, vizsga állomásnak, gyártó műhelynek, logisztikai udvarnak, raktárnak vagy akár szórakozó helynek is.

Éljen ezzel a sokoldalú lehetőséggel és kovácsoljon belőle Ön nyereséget a jövőben!

További információért kérem keressen telefonon!
Vevőink részére a szolgáltatásunk ingyenes.

Restály Éva
PRÉMIUM

Restály Éva

5 éve a Városi Ingatlaniroda tagja
Ingatlanértékesítő
Békéscsaba
+36 (30) 571 9454
Észrevétel a hirdetéssel kapcsolatban
Egy ingatlanos naplója